Jugendstilvilla mit Garten in Stresa, nur wenige Schritte von der Uferpromenade des Lago Maggiore

28838 Stresa, via Principe di Piemonte, Piémont, Italie

EUR 595.000
  1. Demeure historique
  2. Année de construction 1930
  3. Dernière modernisation 2016
  4. 307 m² Surface habitable
  5. 530 m² Surface du terrain
  6. 8 Chambres
  7. 3 Chambres
  8. 4 Salle de bain
  9. 4 No. d'étages

Lassen Sie sich vom zeitlosen Charme dieser charmanten historischen Residenz mit Seeblick verzaubern, nur wenige Meter von den Ufern des Lago Maggiore entfernt.

Erbaut im Jahr 1930 und 1997 durch die Aufstockung eines zweiten Panoramageschosses erweitert, vereint diese Immobilie auf perfekte Weise klassischen Stil mit modernem Komfort. Die großzügigen und lichtdurchfluteten Räume sowie die unmittelbare Nähe zum See machen diese Villa zu einem wahren Juwel. Jede Etage ist mit originalen architektonischen Details geschmückt, die die Geschichte und Eleganz vergangener Zeiten widerspiegeln. Die Ausrichtung nach Süd-Ost-West sorgt den ganzen Tag über für eine angenehme Lichtdurchflutung.

In privilegierter Lage in der bekannten Stadt Stresa gelegen, erstreckt sich die Residenz über eine Wohnfläche von 307 m², verteilt auf vier Ebenen voller Charakter und historischer Details. Der 530 m² große Privatgarten bietet eine Oase der Ruhe und Privatsphäre – ideal für entspannte Stunden im Freien.

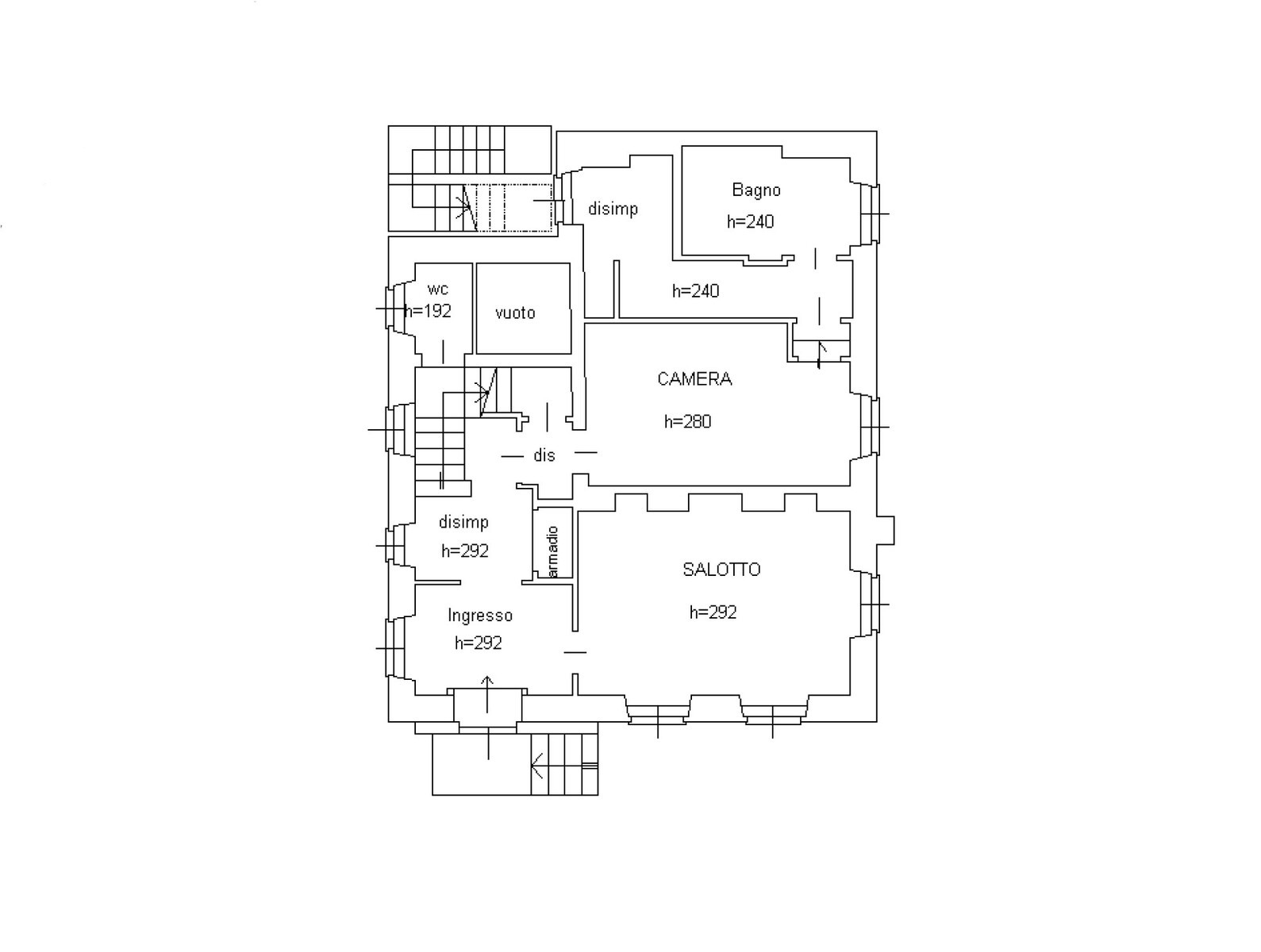
Aufteilung der Innenräume:

UNTERGESCHOSS
Großer Hobby-/Tavernenraum, Garage für drei Autos, Abstellraum und Technikraum

ERDGESCHOSS
Eingangsbereich, Flure, Wohnzimmer, Schlafzimmer mit Doppelbett, zwei Badezimmer

1. OBERGESCHOSS
Wohnzimmer, zwei Küchen mit Zugang zum Balkon, Flur mit Zugang zu einem langen Balkon, Schlafzimmer mit Doppelbett, Badezimmer

2. OBERGESCHOSS
Großzügiger Open-Space-Bereich als Wohn-/Arbeitszimmer mit Bad, Panoramaterrasse mit Blick auf die Hügel sowie Balkon mit parziellem Blick auf den See und die Borromäische Inseln.

Hochwertige Details – wie Holzfenster mit Doppelverglasung im Jugendstil, maßgefertigte Einbauschränke und Kamine – verleihen dem Haus zusätzlichen Charme, während die Erdgasheizung Komfort und Effizienz garantiert.

Die Villa wird teilweise möbliert angeboten und eignet sich dank der bereits getrennten Eingänge ideal zur Aufteilung in drei unabhängige Wohneinheiten.

Strategische Lage: Die Nähe zur Autobahn A26 und zum Bahnhof von Stresa ermöglicht eine bequeme Erreichbarkeit der wichtigsten Sehenswürdigkeiten der Region, darunter die Borromäische Inseln und die berühmten botanischen Gärten. Der internationale Flughafen Mailand-Malpensa ist in nur 45 Minuten erreichbar.

Diese Immobilie stellt eine seltene Gelegenheit dar für alle, die davon träumen, in einer der exklusivsten und faszinierendsten Ortschaften am Lago Maggiore zu leben – oder zu investieren.

Caractéristiques et atouts

État de construction
Rénovation partielle
Localisation
Centre ville
Vue
Vue sur le jardin Vue sur le lac
Architecture
Art nouveau
Détails architecturaux
Cheminée Vitraux Balcon
Terrain
Jardin
Utilisation actuelle
Propriété résidentielle
Construction et façade
Bâtiment indépendant Cave Façade crépie
Toit
Toit à pignon
Fenêtre
Fenêtres en bois
Sol
Carreaux de sol historiques Parquet Granit
Type de chauffage
Chauffage individuel
Affirmation
Gaz Bois
Installations de fourniture
Terrain entièrement viabilisé
Environnement et infrastructures
Commerces Services médicaux Accès aux transports Gastronomie
Utilisation future
Résidence privée/Propriété familiale
Mentions légales

Agence immobilière

Città Ideale

Corso Mameli 203

28921 Verbania Intra

Italie
Contact
Fixe: +39 0323 407435
S'abonner à Città Ideale

Recevez les nouvelles offres de vente de cette agence immobilière par e-mail. L'ordre de recherche peut être désactivé à tout moment.

  • REALPORTICO-ID
    2606399
  • Mis à jour
    Il y a 2 mois
  • Vues
    6.82k
  • Personnes atteintes
    5.95k
Top 10 des pays pour cette propriété
Vues des 30 derniers jours

Città Ideale

Plus d’annonces récentes

28824 Oggebbio, Piémont
Propriété historique avec vue sur le lac Majeur à Oggebbio
28823 Ghiffa, Piémont
Demeure rénovée avec trois unités d’habitation et vue sur le lac
28823 Ghiffa, Piémont
Demeure historique avec vue sur le lac Majeur